01.401 Fucoli slussventiler serie 3000 med muffar PN16
Fucoli-Somepal slussventil. Med muffar för PVC-rör; fritt genomlopp.
Fördelar
- Fullt vulkanizerad kägla med fixerad spindelmutter
- Spindelmutter CW617N (accepterad UBA lista)
- 4 spindeltätningar för att säkerställa lång hållbarhet
- Fritt genomlopp
- Stängning lägre än standard
- Försänkta bultar som är skyddade med smältmassa
- Kamring som fixerar spindel och ger låga stängningsmoment
- Blå för vatten (EPDM)Rödbrun för avlopp (NBR) Finns även för gas
Dokument och länkar
Fucoli-Somepal 01.401 slussventiler
Med muffar för PVC-rör; fritt genomlopp.
|
RSK nr.EPDM
|
RSK nr.NBR
|
DN
|
Tryck-klass
|
För rör YDmm
|
D1mm
|
Lmm
|
Emm
|
Hmm
|
H1mm
|
Spindelmm
|
Varv
|
MaxNm
|
Viktkg
|
Varukorg
|
|---|---|---|---|---|---|---|---|---|---|---|---|---|---|---|
|
441 73 27
|
4376372
|
40
|
PN16
|
50
|
74
|
220
|
76
|
234
|
274
|
14,1
|
13
|
25
|
7
|
|
|
441 73 28
|
4376373
|
50
|
PN16
|
63
|
93
|
250
|
91
|
235
|
285
|
14,1
|
13
|
25
|
7
|
|
|
441 73 29
|
4376374
|
65
|
PN16
|
75
|
106
|
270
|
99
|
250
|
305
|
17,1
|
13
|
30
|
9
|
|
|
441 73 30
|
4376375
|
80
|
PN16
|
90
|
124
|
280
|
102
|
290
|
355
|
17,1
|
20
|
40
|
13
|
|
|
441 73 31
|
4376376
|
100
|
PN16
|
110
|
147
|
300
|
111
|
325
|
400
|
19,1
|
20
|
50
|
16
|
|
|
441 73 32
|
4376377
|
125
|
PN16
|
125
|
161
|
325
|
117
|
362
|
445
|
19,1
|
25
|
60
|
19
|
|
|
441 73 33
|
4376378
|
125
|
PN16
|
140
|
178
|
325
|
117
|
362
|
455
|
19,1
|
25
|
60
|
20
|
|
|
441 73 34
|
4376379
|
150
|
PN16
|
160
|
201
|
350
|
117
|
425
|
530
|
19,1
|
30
|
75
|
30
|
|
|
441 73 35
|
4376380
|
200
|
PN16
|
200
|
245
|
400
|
137
|
505
|
630
|
24,1
|
34
|
100
|
44
|
|
|
437 65 05
|
4376506
|
200
|
PN16
|
225
|
271
|
400
|
135
|
505
|
643
|
24,1
|
34
|
|
||
|
441 73 36
|
4376381
|
250
|
PN16
|
250
|
302
|
450
|
150
|
595
|
750
|
27,1
|
42
|
125
|
47
|
|
|
441 73 37
|
4376382
|
300
|
PN16
|
315
|
372
|
490
|
166
|
670
|
860
|
27,1
|
50
|
150
|
65
|
|
|
441 73 38
|
4376383
|
400
|
PN16
|
400
|
464
|
640
|
195
|
940
|
1180
|
32,1
|
57
|
200
|
98
|
|
Arbetstemperatur: 0-70°C (ej frost)
Standarder:
Designad enl. EN 1074 del 1 & 2 och EN 1171
För PVC rör enl. EN ISO 1452-2
På förfrågan:
Spindel i andra kvaliteter
Större slussventiler
Tillverkad i Europa
15 års garanti
|
|
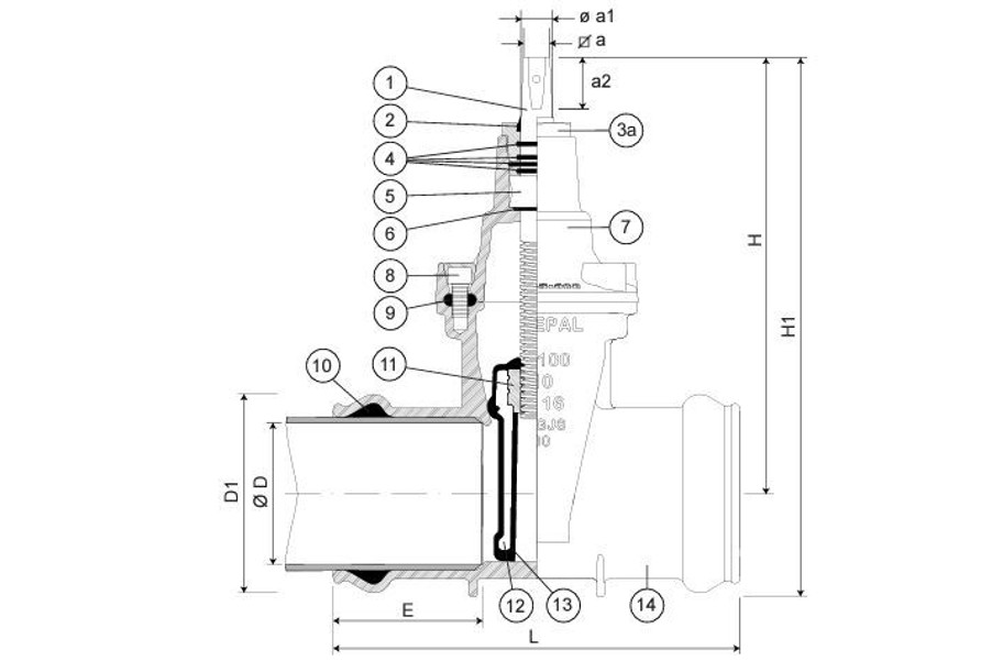
Komponent
|
Material BLÅ/RÖDBRUN
|
Standard
|
Varukorg
|
|---|---|---|---|---|
|
1
|
Spindel
|
Syrafast spindel med rullade gängor 1.4404
|
EN 10088-1
|
|
|
2
|
Avstrykarring
|
Elastomer
|
|
|
|
3
|
Övre spindelmutter
|
Mässing
|
EN 12164
|
|
|
4
|
O-ring
|
Elastomer EPDM/NBR
|
EN 681-1
|
|
|
5
|
Spindelmutter
|
Fixerad spindelmutter av avzinkningshärdig mässing (CuZn36Pb3)
|
EN 12164
|
|
|
6
|
O-ring
|
Elastomer EPDM/NBR
|
EN 681-1
|
|
|
7
|
Överdel
|
Segjärn EN-GJS-500-7
|
EN 1563
|
|
|
8
|
Bultar
|
Rostfritt stål A2
|
EN 10088-1
|
|
|
9
|
Överdel packning
|
Utblåsningssäker EPDM/NBR
|
EN 681-1
|
|
|
10
|
Läppringstätning
|
EPDM/NBR
|
EN 681-1
|
|
|
11
|
Spindelmutter
|
Mässing
|
EN 12164
|
|
|
12
|
Kägla
|
Segjärn EN-GJS-500-7
|
EN 1563
|
|
|
13
|
Beläggning kägla
|
Fullt vulkaniserad EPDM/NBR
|
EN 681-1
|
|
|
14
|
Ventilhus
|
Segjärn EN-GJS-500-7
|
EN 1563
|
|
|
15
|
Lager
|
Stål
|
ISO 20516
|
|